Baustil: Modern
Bautyp: Einfamilienhaus
Dachform: Satteldach
Fassade: Holz
Geschosse: 1
Wohnfläche: 172m²

VILLA R

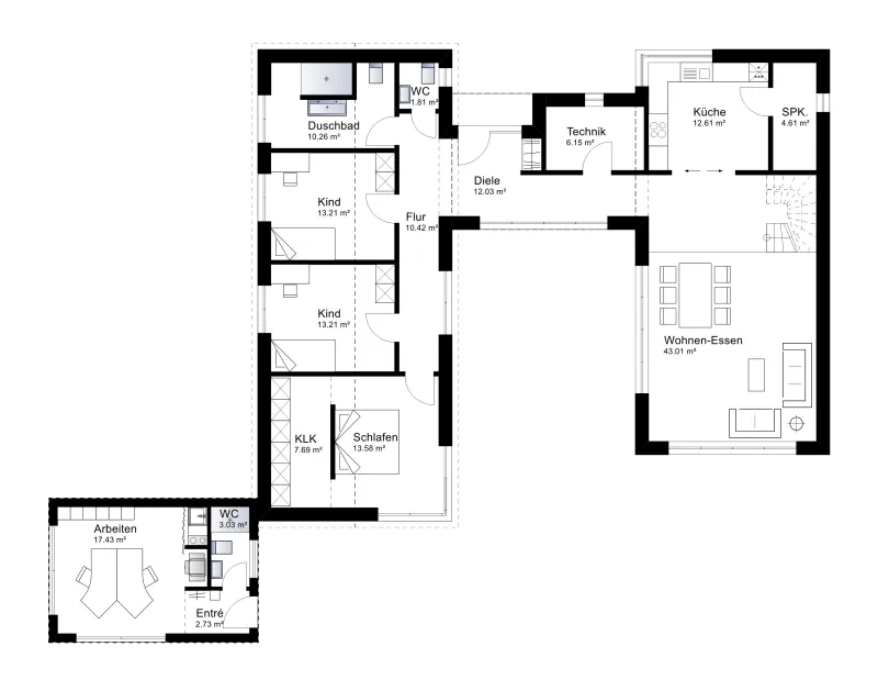
Villa R – Moderner Bungalow mit durchdachter Raumarchitektur auf 172 m²

Die Villa R steht für modernes Wohnen auf einer Ebene – mit klaren Linien, großzügiger Raumaufteilung und einem durchdachten Grundriss, der Funktion und Ästhetik vereint. Auf 172 m² Wohnfläche bietet der Bungalow ein stilvolles Zuhause mit zwei intelligent getrennten Flügeln – perfekt für Familien mit Anspruch an Komfort, Privatsphäre und lichtdurchflutete Räume.

Zweigeteilter Grundriss für klare Struktur und Lebensqualität

Der linke Flügel ist dem Rückzug gewidmet:

  • Großes Elternschlafzimmer mit integrierter Ankleide und einer eindrucksvollen Fensterfront über Eck
  • Zwei helle Kinderzimmer mit optimaler Ausrichtung
  • Modernes Duschbad mit hochwertiger Ausstattung
  • Separates Gäste-WC für Alltag und Besuch

Der rechte Flügel schafft Raum für gemeinsames Leben:

  • Offene Küche mit angrenzender Speisekammer
  • Großzügiger Essbereich mit Blick auf den Innenhof
  • Wohnzimmer mit fließendem Übergang zum Außenbereich – perfekt für entspannte Abende und gesellige Stunden

Licht, Raumgefühl und Design auf höchstem Niveau

Großflächige Fenster sorgen in der gesamten Villa R für eine natürliche Lichtführung und verbinden Innen- und Außenraum auf elegante Weise. Der zentrale Innenhof öffnet den Blick ins Grüne und schafft ein geschütztes Refugium mitten im Zuhause.

Zeitlos. Klar. Einzigartig – die Villa R.

Hinweis: Die dargestellten Visualisierungen zeigen zum Teil Sonderausstattungen. Sie basieren auf unseren eigenen Entwürfen und können zur besseren Darstellung KI-gestützt optimiert worden sein.