Baustil: Bungalow
Bautyp: Einfamilienhaus
Dachform: Satteldach
Fassade: Holz
Geschosse: 1
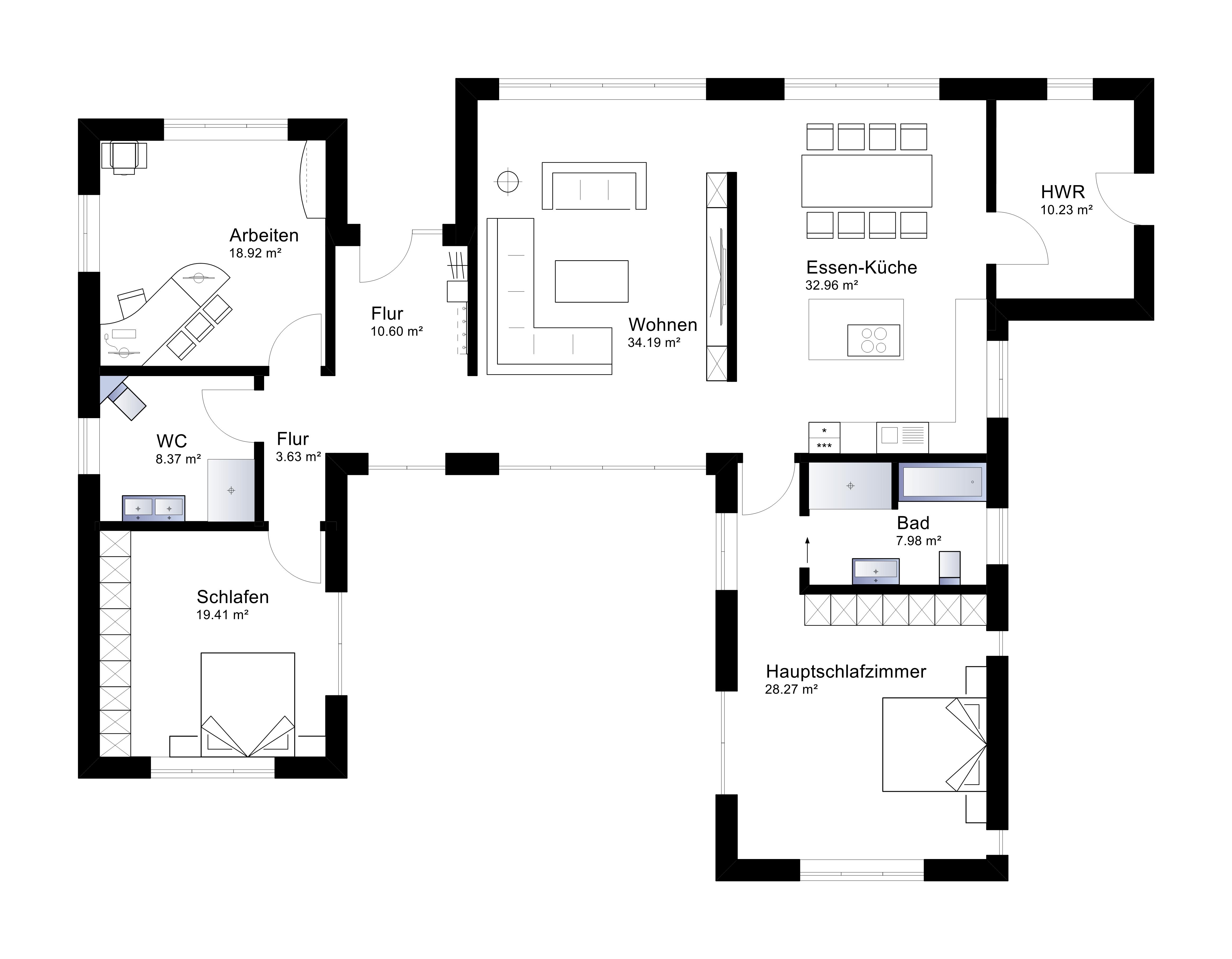
Wohnfläche: 175m²

Villa New Hampshire

Amerikanischer Vorstadtbungalow für komfortables Wohnen

Die Villa New Hampshire bringt den Charme eines amerikanischen Vorstadtbungalows nach Hause. Mit 175 m² Wohnfläche bietet dieses Haus eine perfekte Mischung aus großzügigem Design, cleverer Raumaufteilung und höchstem Wohnkomfort – ideal für Familien und für barrierefreies Wohnen im Alter.

Highlights der Villa New Hampshire:

  • Clever durchdachtes Wohnkonzept: Ein separater Flügel mit Arbeitszimmer, WC und einem Schlafzimmer schafft einen privaten Bereich, ideal für Gäste oder Homeoffice.
  • Offene und flexible Raumaufteilung: Das Hauptgebäude überzeugt mit einem großzügigen Wohnzimmer, das durch eine beidseitig umlaufbare Trennwand mit Esszimmer und Küche verbunden ist. Diese Gestaltung fördert eine offene und einladende Wohnatmosphäre.
  • Exklusiver Rückzugsort: Das Hauptschlafzimmer verfügt über ein integriertes, voll ausgestattetes Badezimmer, das höchsten Komfort garantiert.
  • Geschützter Innenhof: Der von drei Seiten umschlossene Innenhof bietet Privatsphäre und wird von Flur, Schlafzimmer, Hauptschlafzimmer und Wohnzimmer eingerahmt, die alle einen Ausblick auf diesen ruhigen Außenbereich bieten.
  • Ideales Zuhause für jedes Lebensalter: Die barrierefreie Gestaltung und der Komfort machen die Villa New Hampshire sowohl für Familien als auch für ein entspanntes Wohnen im Alter zur perfekten Wahl.

Ein Zuhause für höchste Ansprüche

Die Villa New Hampshire besticht durch ihren amerikanischen Vorstadtstil und ein Wohnkonzept, das Design und Funktionalität harmonisch vereint. Lichtdurchflutete Räume, flexible Nutzungsmöglichkeiten und ein geschützter Innenhof machen dieses Haus zu einem einzigartigen Lebensraum.

Erleben Sie modernes und komfortables Wohnen im Stil eines amerikanischen Bungalows – mit der Villa New Hampshire.

Hinweis: Die gezeigten Abbildungen enthalten teilweise Sonderausstattungen.